Year 3 Project: Revit Study

Date of the project: 2022

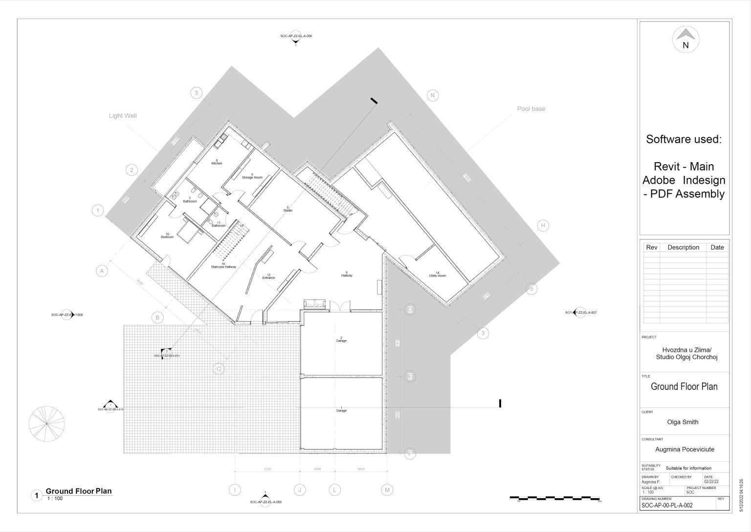
Hvozdna u Zlina/ Studio Olgoj Chorchoj Remodeling

Review original designer information and prepare a tender package – suitable for information, using Autodesk Revit. Prepare GA’s, details, calculations, scheduling and rendering to be up to UK Regulations, fix where needed, with annotations, dimensions, counts, realistic components and materials. Engaging BIM framework where possible.

Goal: Learn and adapt Revit software together with BIM framework for a given project: Hvozdna u Zlina/ Studio Olgoj Chorchoj. Innitial Design Renders added below.