Year 2: Eco-House
Date of the Project: 2021
Client Brief
Project 2 (a major design project) required students to design an eco-house on a green field site on the outskirts of small Somerset village. It is a real project that the client has agreed to participate in ATD design project.
Environmental, structural and material strategies will therefore be at the forefront of your thinking for this project. An eco-house is one which is carefully designed to minimise impact on the environment both in its construction, material use, maintenance and operation.
Some of the strategies:
1. Passivhaus
2. BREEAM “Excelent” rating
3. Standards and regulations
4. Renewable sources
5. “Zero Carbon”
6. Etc.
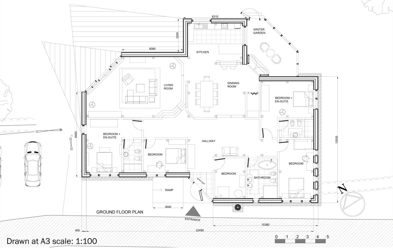
Students were asked to review the existing design and design a house that replicates older building in terms of the number, type and general size of the rooms designed.
Rooms required:
• 4 Bedrooms (2 En-Suite)
• Living Room
• At least one WC
• Storage room and Service room
• Kitchen + Dining
There is no limit to the size of the house, but it must be efficient in its use of building materials and energy, and be comparable to the size of the current design.
The house needs to be ‘radical’ and be an ‘eco’ statement, so it excites the client.
- Energy in use (Renewables) and Low Embodied Carbon
Renewable energy uses in residential house:
Installed needed technologies that can harvest solar power and use it in energy production or water heating. To get the best results they must be incorporated into a design carefully for them to work as efficiently as possible. Although, pros and cons need to be addressed and taken care off if possible. Renewables and natural gains chosen or applied:
- Atrium solar and conservatory roof natural ventilation (automatic windows temperature monitored system)
- Solar shading with integrated solar PV panels to collect solar energy and protect south facing windows from summer overheating
- Semi-transparent PV cells installed into atrium windows
- Solar thermal approach with solar collector facing south + heat pump
Embodied energy in materials:
Taking into consideration carbon footprint of each and every material that the building needs, adds up to a massive amount of carbon dioxide that was emitted during the process of manufacture, transport and etc. Making sure the materials are being recycled and reused or using materials that do not require much work to be done with that “hurts” environment. Materials chosen were researched to be produced locally and reduce transportation time and emissions:
- Primary GluLam Frame
- Insulation: Paperwaste Ecowool, Cellulose Ridig
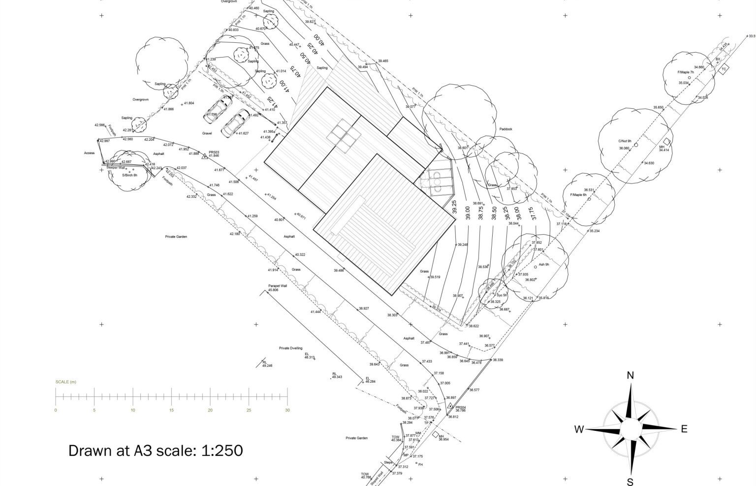
Site Analysis
Ground Floor Plan
Elevations
Cross-Sections
Site Plan with Roof Plan
Construction Details
Structural Diagram
Primary Frame – Glued Laminated Timber
GluLam can be produced to have fire resistance for 30, 60 or even 90 minutes, it has a natural resistance so in some cases expensive fire protection coating are not necessary. Unlike steel it also remains structurally stable when subjected to high temperatures.
Concrete footings
From each load bearing column there needs to be a footing for a building to perform best and transfer the load to the soil. Depending on the slope and location, columns were reinforced to provide a proper load bearing system.
Exploded Axonometric
The whole house “exploded” to show layers that are incorporated into frame, walls, roof and foundations.
External View
View to the winter garden with late morning sun. External finish featuring chestnut and white oak mixed cladding, darkwood timber window frames and timber terrace to the right.
