Small Physical Exercise Space – Bath

Fully repurposed building was set to become a small physical exercise space with a ‘warehouse’ look to be finished in 2024-2025. The lighting and small power designs that were chosen needed to be suitable for required space and cost effective. 

I designed the lighting and small power collaborating with my collogues that were setting up the tender and quates. to determine needed luminaires Dialux Evo was used to produce a full lighting report on the unique space. Drawings presented bellow were the last concept drawings produced by me and getting ready to be used on site for construction. I also produced separate luminaire schedules for the project.

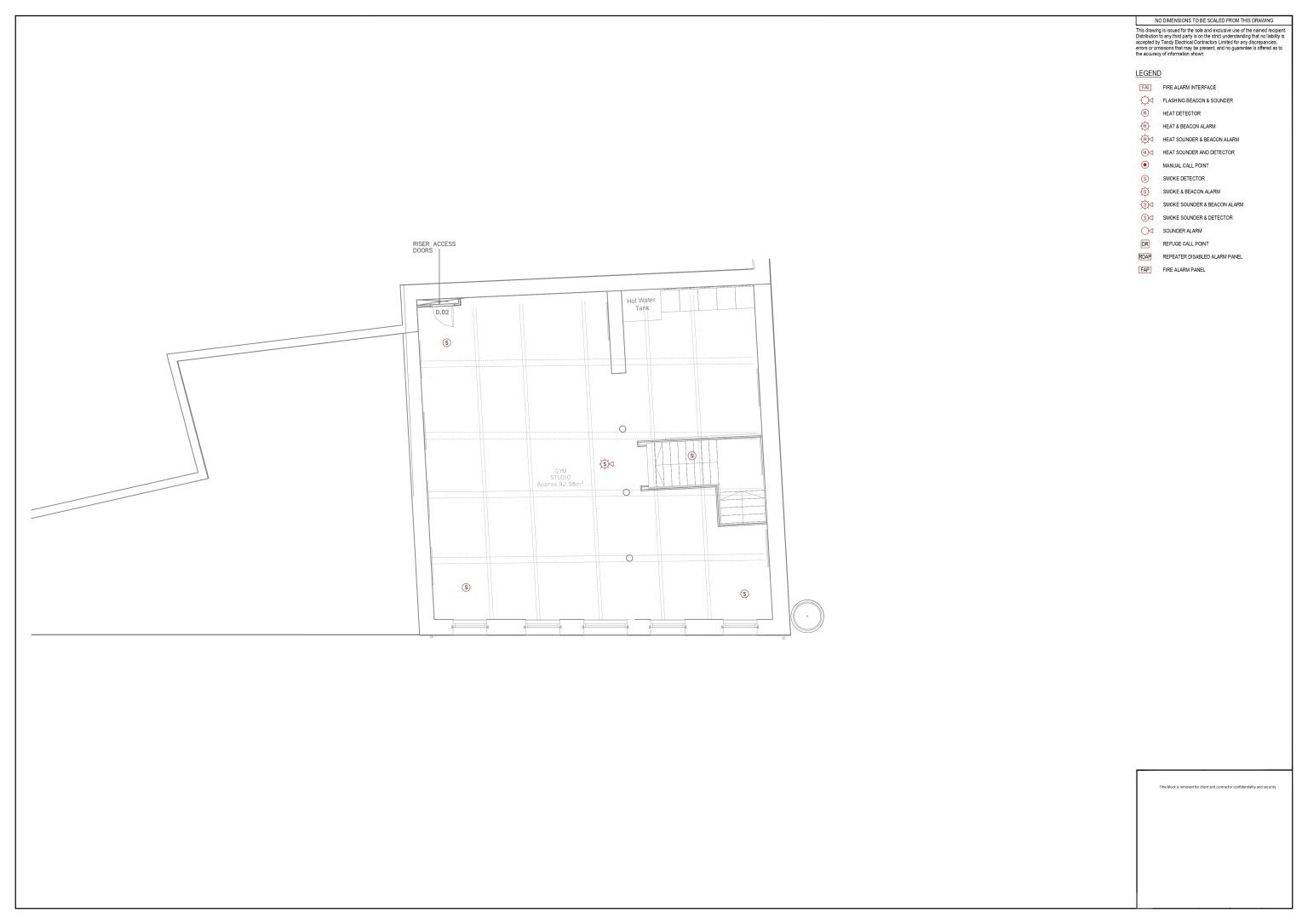
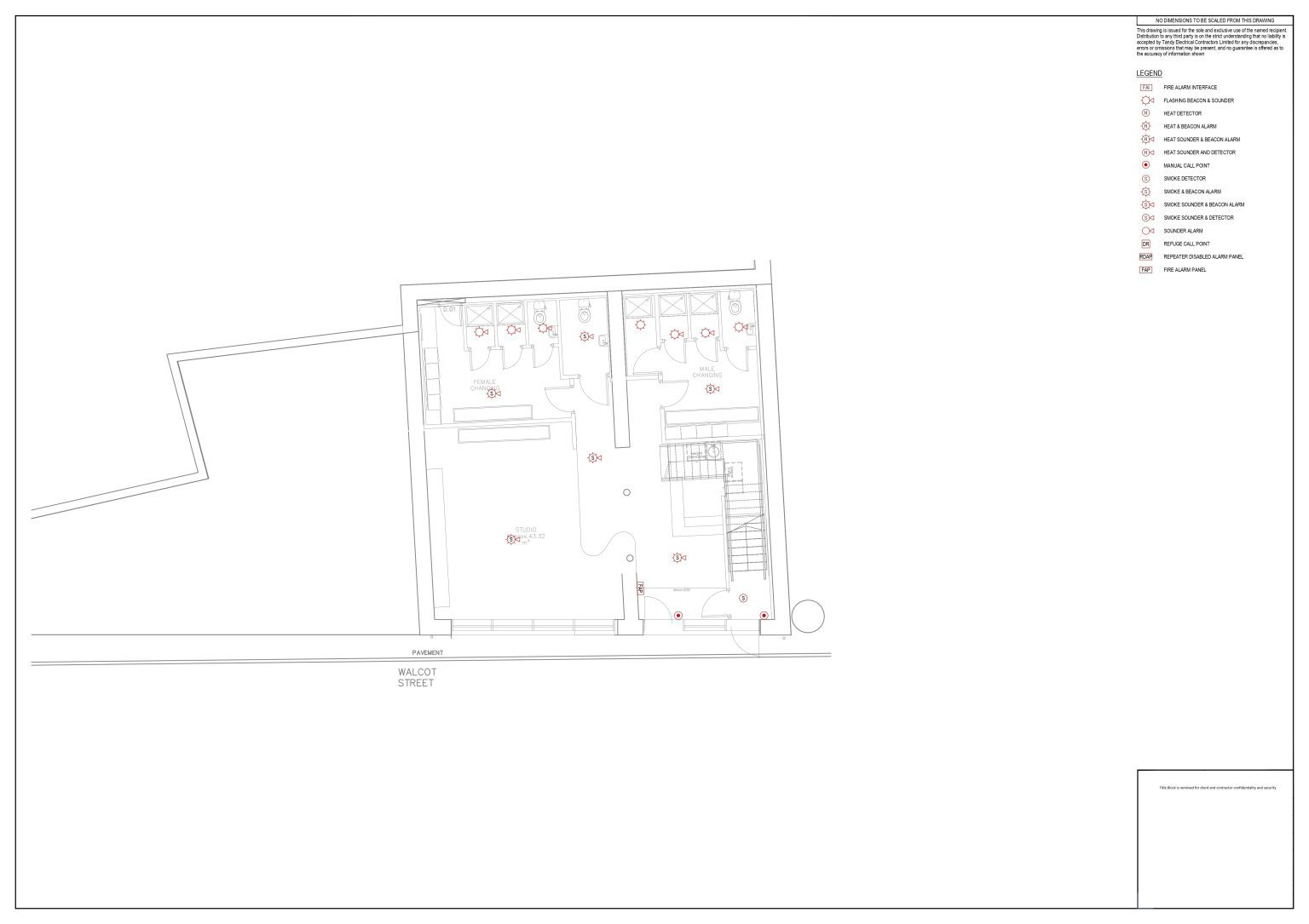
Fire alarm drawings were produced collaborating with different contractor.

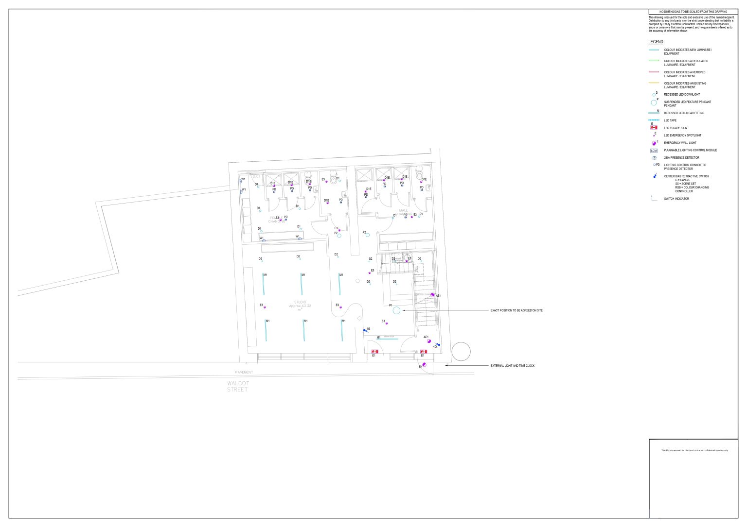
Lighting Drawings

Small Power and Data Drawings

Fire Alarm Drawings

Dialux Evo Renders and Report

Lighting design chosen was very simple. In order to check if the luminaires were suitable and gave enough light in the studio, I applied some basic textures to the surfaces. Textures chosen were talked through with the client in order to know a preliminary interior design. 

It is worth noting that the last Dialux Evo design was developed just before construction stage. It is safe to assume that the design still might change based on other equipment use or texture changes for interior design.