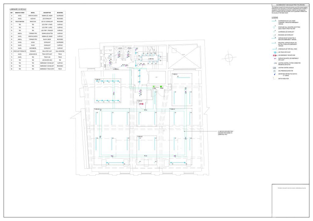
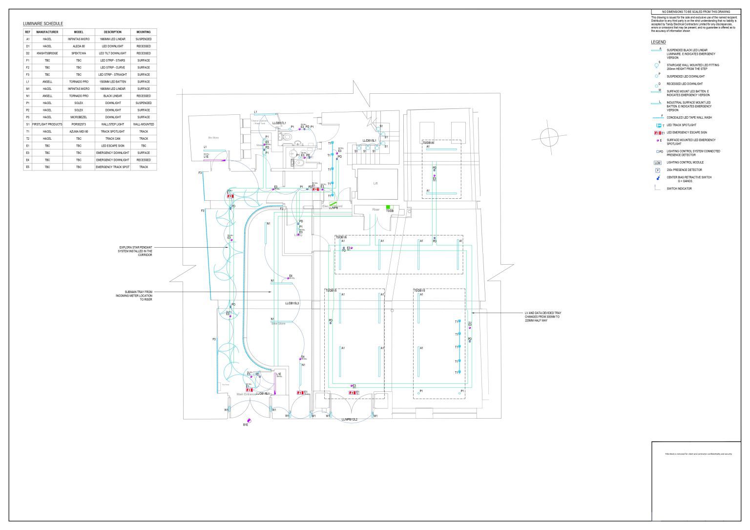
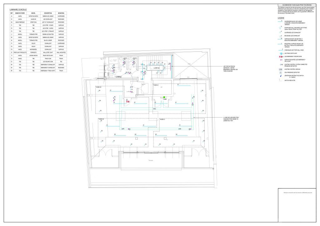
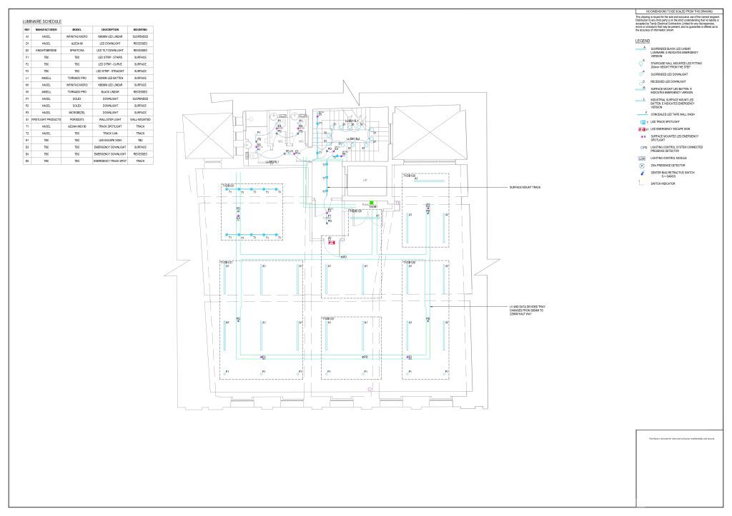
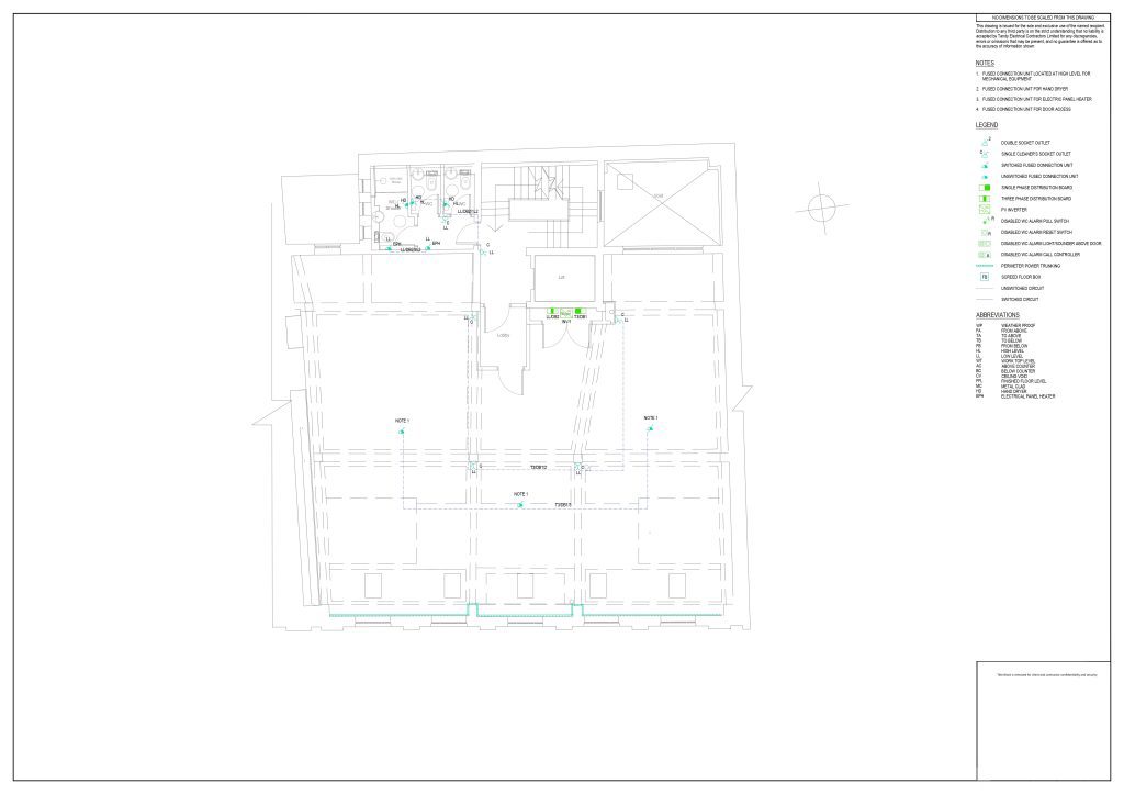
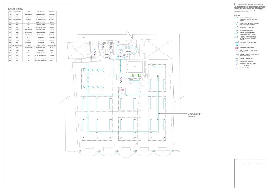
Cat A Offices – Bristol

This project was set to be a fully refit office space in Bristol from 2022 to 2024. Repurposed landlord distribution board and five tenant boards, each on different floor. 

New lighting fittings and a custom made luminaires on the ground floor entrance corridor.

I had the opportunity to design lighting, small power and containment with the help of my colleagues. I used Dialux Evo to confirm the luminaire are fit to use in office spaces and staircase. The client wanted to maintain the columns and open ceiling with the services showing. At the end of the project, I surveyed the building for record drawings.

Please view drawings below.

Lighting Drawings

Small Power Drawings

Schematics