Educational Research Facility – Bristol

This project was made of two parts that were executed one after the other. It started approximately in 2020, due to finish in 2024. It is an education facility that would be used by a variety of people in order to have access to unique equipment and learning materials. Due to this, regulations and requirements were very important to be met as stated. This project required to have high quality thermal leaf and acoustic design to meet BREAM standards.

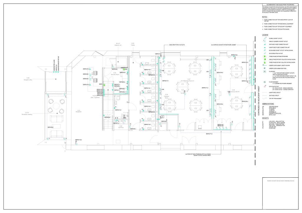
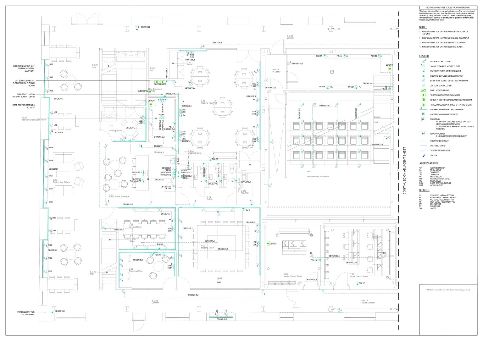
Sophisticated equipment needed a neat and manageable small power and containment design to be safe and aesthetically pleasing. Therefore, dado trunkings and more were used in enclosed spaces to provide power. 

Lighting and emergency layouts required to meet expected regulations set out by client. DALI system was used for the main lighting and central batteries for emergency lighting to be used effectively by the people that will occupy the building.  

Please view drawings below.

Lighting Drawings – Part One

Small Power Drawings – Part One

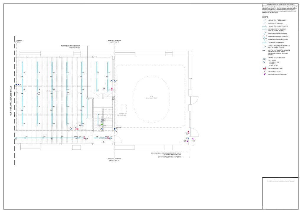
Lighting Drawings – Part Two

Dialux Evo Emergency Lighting Renders and Report

These Dialux Evo images and a report was produced in developing stage, just before construction. I have worked on this emergency lighting design with the help of my colleagues.

The Studio required a very high emergency lighting output. Average illuminance needed to be 50 lux to provide safe evacuation in a hazardous space. Calculation were made without any furniture and curtain that was to be installed in the middle. Studio space itself does not have any planned furniture as it is supposed to change depending on needs.

A big concern for client was to make sure the occupants can safely evacuate with all the tripping hazards properly illuminated. That is why emergency luminaires were picked to meet requirements in the client brief. It can be seen in the renders that the space is properly illuminated with only emergency luminaires.

Textures used in the calculations were based on the preliminary interior design. The ceiling (with all the equipment installed) were to be spray pained in black. The floor was to be resin with a offset concrete colour, so the floor should be slightly more reflective. The wall colour was picked to be a dark grey.

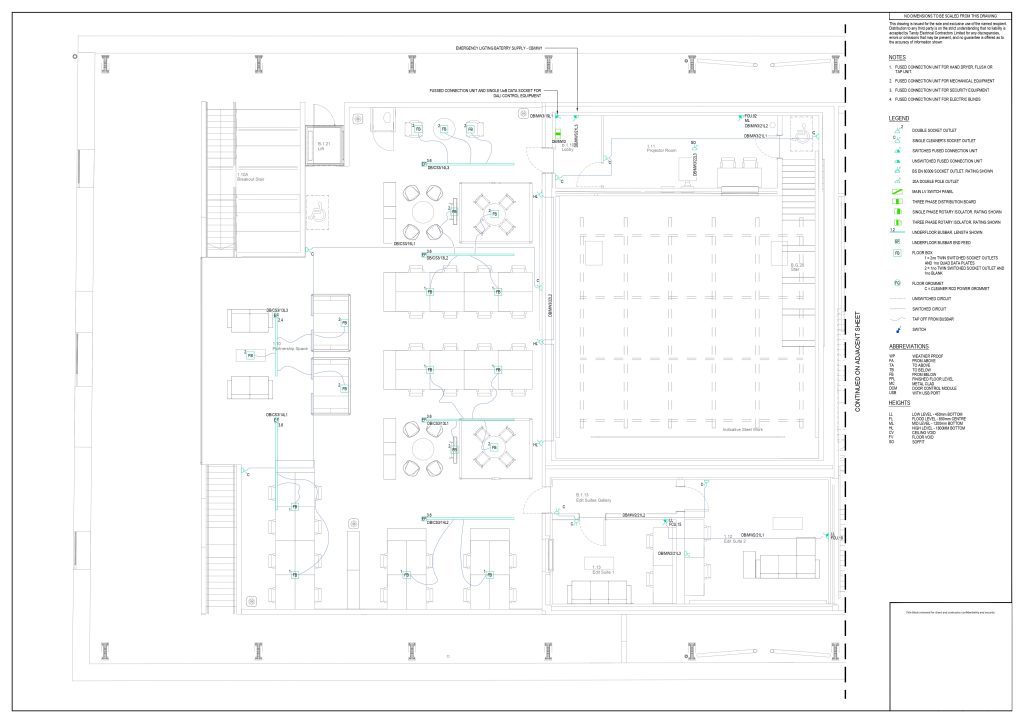
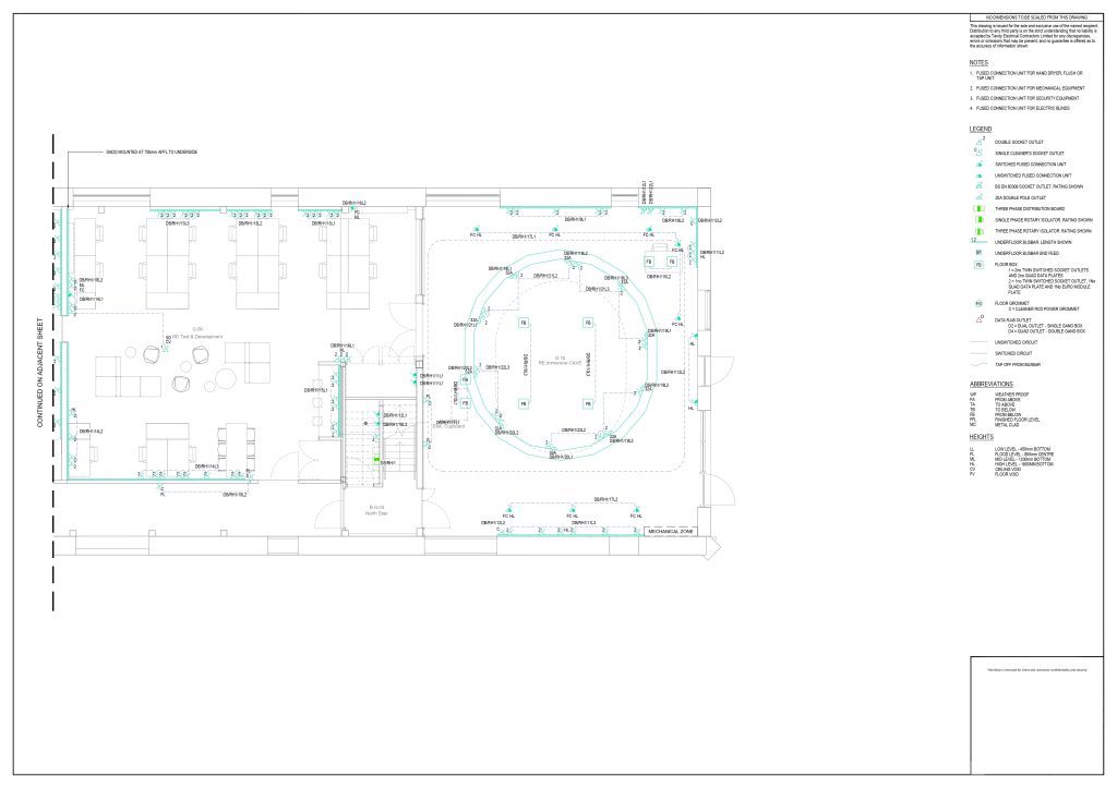
Small Power Drawings – Part Two

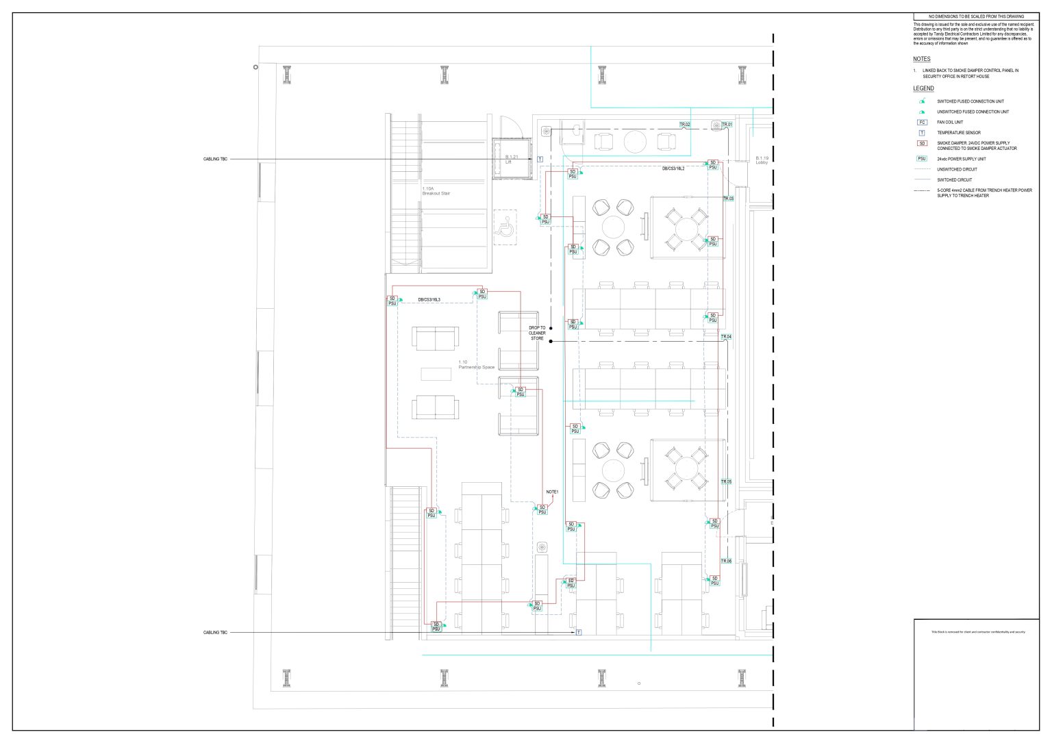
Smoke Vent and Trench Heater Layout Drawing – Part Two

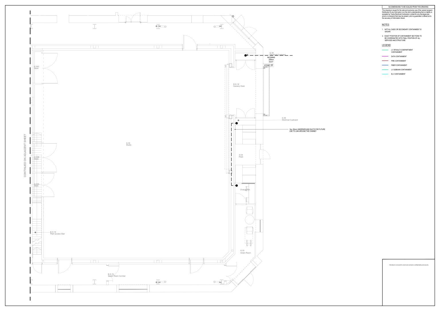
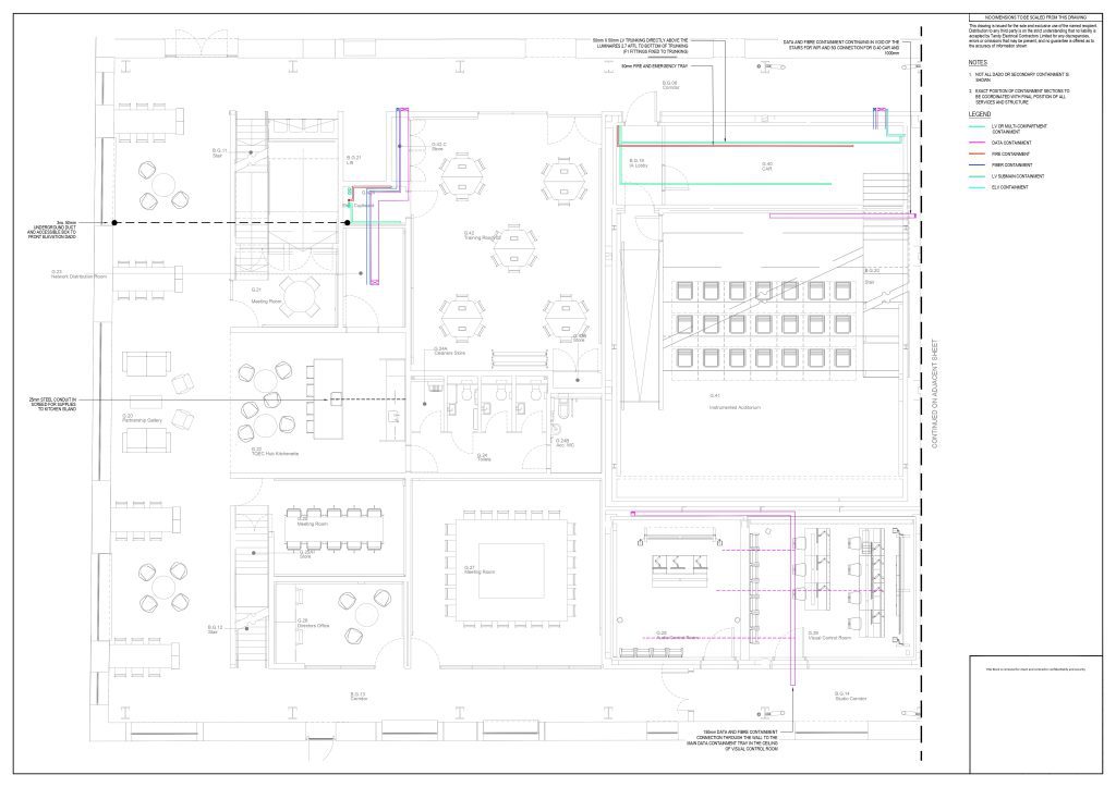
Containment Drawings – Part Two

Schematic – Part Two